全国の不動産情報はリブマックス > 東京都の賃貸検索 > 東京都の市区町村から賃貸検索 > 大田区の賃貸一覧 > CITY WALK馬込 > 物件詳細

CITY WALK馬込

  • 新築
  • 家具家電付き
    敷金礼金なし
    ペット相談可
    デザイナーズ
    初期費用カード決済可
    2階以上
    南向き
    駐車場あり
    オートロック
    エアコン
    バス・トイレ別
    追い炊き
    24時間ゴミ出し可
    インターネット無料

    住環境・都心へのアクセスともに良好な好立地の新築です☆ネット無料・顔認証システムなど設備充実☆ご希望の階数や間取りはお早めにお問合せ下さい☆★エリア最大級★経験豊富なスタッフが多数在籍しております♪初期費用クレジット支払可能!オンライン内覧・オンライン契約等弊社に一度も来店せずとも問題ありません♪弊社ではネットに掲載されている物件は全てご紹介可能になりますので気になる物件は全て申し付けください★

    賃料 間取り 専有面積 所在階 管理費・共益費 敷金 礼金
    8.7万円 1R 18.69㎡ 4階 5,000円 0ヶ月 0ヶ月

    設備条件

    閑静な住宅地
    デザイナーズ
    保証人不要
    高齢者相談
    学生相談
    法人可
    外国人可
    室内洗濯機置場
    フローリング
    都市ガス
    公営水道
    公共下水
    24時間換気システム
    電気有
    照明器具付き
    IHクッキングヒーター
    システムキッチン
    コンロ1口
    バス・トイレ別
    浴室乾燥機
    温水洗浄便座
    シャワー
    洗面所独立
    エアコン
    シューズボックス
    CS
    BS
    インターネット対応
    インターネット無料
    オートロック
    TVモニタ付インターホン
    宅配ボックス
    防犯カメラ
    初期費用カード決済可

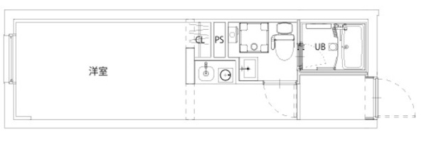
    FLOOR PLANS

    所在階 賃料 管理費 敷金 / 礼金 / 保証金 / 償却 / 敷引 間取り 専有面積 詳細 お気に入り
    3階 8.8万円 5,000円 0ヶ月/ 0ヶ月/ -/ -/ - 1R 19.25㎡

    追加する

    CONTACT US

    リブマックス品川駅前店

    03-3474-8411

    営業時間:AM9:00~PM7:00 定休日:なし、GW・夏季・年末年始

    〒108-0075
    東京都港区港南2丁目2-15 レゴリス品川駅前ビルディング 5F

    SPOT

    大田東馬込郵便局

    大田東馬込郵便局

    約1196m/15分

    OVERVIEW情報の見方

    【マンション】 物件番号:97719557 情報更新日:2026年02月06日 次回更新予定日:2026年02月20日

    所在地 東京都大田区山王2丁目
    交通
  • 都営浅草線馬込」駅 徒歩10分
  • 京浜東北線大森」駅 徒歩12分
  • 横須賀線西大井」駅 徒歩18分
  • 間取り / 詳細 1R /  面積 / バルコニー面積 18.69㎡ / -
    賃料 8.7万円 管理費・共益費 5,000円
    敷金 / 礼金 / 保証金 0ヶ月 / 0ヶ月 / - 償却 / 敷引 - / -
    更新料 1ヶ月(新賃料) 敷金積み増し -
    権利金 / 雑費 - / - 駐車場 / 月額料金 無 / -
    保険加入 / 料金 有 / 18,000円 保険名 / 保険期間 火災保険 / 2年
    保証人代行義務 必加入 保証会社 エポスカード
    保証会社詳細 初回保証料:賃料等の50% 月額保証料:賃料等の1% 向き
    築年月(築年数) 2025年 10月 (予定) 契約期間 2年
    種別 / 構造 マンション / 鉄筋コンクリート 部屋 / 所在階 / 階建 - / 4階 / 5階建
    総戸数 - 現況 / 入居可能日 未完成 / 即時
    取引態様 / 賃貸区分 仲介 / 一般
    物件番号 97719557 取引条件の有効期限 2026年02月20日
    設備条件 閑静な住宅地 デザイナーズ 保証人不要 高齢者相談 学生相談 法人可 外国人可 室内洗濯機置場 フローリング 都市ガス 公営水道 公共下水 24時間換気システム 電気有 照明器具付き IHクッキングヒーター システムキッチン コンロ1口 バス・トイレ別 浴室乾燥機 温水洗浄便座 シャワー 洗面所独立 エアコン シューズボックス CS BS インターネット対応 インターネット無料 オートロック TVモニタ付インターホン 宅配ボックス 防犯カメラ 初期費用カード決済可 
    備考 住環境・都心へのアクセスともに良好な好立地の新築です☆ネット無料・顔認証システムなど設備充実☆ご希望の階数や間取りはお早めにお問合せ下さい☆
    条件(その他) 24時間安心サポート:1万6,500円  室内清掃費用:4万4,000円 保証会社利用必須、外国人契約可能
    取扱店舗

    リブマックス品川駅前店

    東京都港区港南2丁目2-15 レゴリス品川駅前ビルディング 5F

    TEL:03-3474-8411

    国土交通大臣 (3) 第8116号

    (公社)東京都宅地建物取引業協会
    (公社)首都圏不動産公正取引協議会

    QRコード

    QRコード

    このQRコードを読み取ることで、スマホでも物件情報を確認できます。

    MAP

    ※地図上に表示される物件の位置は付近住所に所在することを表すものであり、実際の物件所在地とは異なる場合がございます。

    CONTACT US

    必要項目の入力
    入力内容の確認
    お問合わせ完了

    0/0
    必須項目完了

    確認画面へ
    お進み下さい

    0/0
    必須項目完了

    確認画面へ
    お進み下さい

    お問い合わせ店舗 必須
    お名前 必須
    フリガナ 任意
    電話番号 任意
    メールアドレス 必須

    ※お問い合わせに関するメールは、「@livemax.net」「@fudosan-crm.jp」のドメインから送信させていただいております。

    ご要望
    (複数選択可)
    必須
    ご要望・ご相談の
    内容
    任意

    【CITY WALK馬込へのお問い合せ】

    利用規約及びプライバシーポリシーを必ずお読みください。
     内容に同意いただいた場合は、確認画面へお進みください。

    HANDLING STORES

    会社画像

    リブマックス品川駅前店

    03-3474-8411

    営業時間:AM9:00~PM7:00 定休日:なし、GW・夏季・年末年始

    〒108-0075
    東京都港区港南2丁目2-15 レゴリス品川駅前ビルディング 5F

    簡単60来店予約 店舗詳細へ

    PEOPLE ALSO VIEWED THIS PROPERTY

    Excellia 馬込

    賃料 8.7万円
    種別 マンション
    間取 1K
    住所 東京都大田区南馬込5丁目
    交通 西馬込駅 徒歩3分
    物件の詳細を見る

    FORTIS池上

    賃料 8.75万円
    種別 マンション
    間取 1R
    住所 東京都大田区池上4丁目
    交通 池上駅 徒歩5分
    物件の詳細を見る

    M-BLOCK

    賃料 8.8万円
    種別 アパート
    間取 1K
    住所 東京都大田区大森西1丁目
    交通 平和島駅 徒歩10分
    物件の詳細を見る

    イプセ蒲田WEST

    賃料 8.8万円
    種別 マンション
    間取 1R
    住所 東京都大田区東矢口3丁目
    交通 蓮沼駅 徒歩3分
    物件の詳細を見る

    トップへ戻る