全国の不動産情報はリブマックス > 東京都の賃貸検索 > 東京都の市区町村から賃貸検索 > 世田谷区の賃貸一覧 > GRANPASEO下北沢 > 物件詳細

GRANPASEO下北沢

  • 新築
  • 家具家電付き
    敷金礼金なし
    ペット相談可
    デザイナーズ
    初期費用カード決済可
    2階以上
    南向き
    駐車場あり
    オートロック
    エアコン
    バス・トイレ別
    追い炊き
    24時間ゴミ出し可
    インターネット無料

    <見学予約受付中>新築!即入居可!フリーレント2ヶ月!インターネット使用料無料!敷金・礼金0キャンペーン!初期費用クレジット決済可!問合せ当日でもご予約可能!他社掲載物件もまとめてご紹介可能です!オンライン案内可。写真・動画送付、WEB契約等来店不要でご契約可能。セキュリティ充実で安心!お気軽にご相談くださいませ!

    賃料 間取り 専有面積 所在階 管理費・共益費 敷金 礼金
    21万円 1LDK 40.50㎡ 1階 12,000円 0ヶ月 0ヶ月

    設備条件

    デザイナーズ
    保証人不要
    2人入居可
    学生相談
    法人可
    フリーレント 2ヶ月
    室内洗濯機置場
    フローリング
    バルコニー
    都市ガス
    公営水道
    公共下水
    24時間換気システム
    エレベーター
    電気有
    照明器具付き
    敷地内ごみ置き場
    耐震構造
    ガスコンロ
    コンロ2口以上
    システムキッチン
    対面式キッチン
    カウンターキッチン
    バス・トイレ別
    追い焚き風呂
    浴室乾燥機
    温水洗浄便座
    シャワー
    洗面所独立
    エアコン
    シューズボックス
    CS
    BS
    インターネット対応
    インターネット無料
    オートロック
    TVモニタ付インターホン
    宅配ボックス
    防犯カメラ
    24時間ゴミ出し可
    初期費用カード決済可

    FLOOR PLANS

    所在階 賃料 管理費 敷金 / 礼金 / 保証金 / 償却 / 敷引 間取り 専有面積 詳細 お気に入り
    1階 21万円 12,000円 0ヶ月/ 0ヶ月/ -/ -/ - 1LDK 40.50㎡

    追加する

    CONTACT US

    リブマックス渋谷店

    03-3400-3300

    営業時間:AM9:00~PM7:00 定休日:水曜日・年末年始・お盆・GW

    〒150-0002
    東京都渋谷区渋谷1丁目24-14 トライアングルビル 9F

    OVERVIEW情報の見方

    【マンション】 物件番号:96151937 情報更新日:2026年02月12日 次回更新予定日:2026年02月26日

    所在地 東京都世田谷区北沢1丁目
    交通
  • 京王井の頭線池ノ上」駅 徒歩3分
  • 京王井の頭線下北沢」駅 徒歩7分
  • 小田急小田原線東北沢」駅 徒歩9分
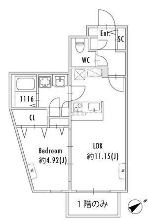
  • 間取り / 詳細 1LDK / 
    LDK 11.1帖/洋室 4.9帖
    面積 / バルコニー面積 40.50㎡ / -
    賃料 21万円 管理費・共益費 12,000円
    敷金 / 礼金 / 保証金 0ヶ月 / 0ヶ月 / - 償却 / 敷引 - / -
    更新料 1ヶ月(新賃料) 敷金積み増し -
    権利金 / 雑費 - / - 駐車場 / 月額料金 - / -
    保険加入 / 料金 有 / 18,000円 保険名 / 保険期間 入居者総合安心保険 / 2年
    保証人代行義務 必加入 保証会社 ジェイリース
    保証会社詳細 - 向き 南東
    築年月(築年数) 2025年 2月 (築1年) 契約期間 2年
    種別 / 構造 マンション / 鉄筋コンクリート 部屋 / 所在階 / 階建 - / 1階 / 4階建
    総戸数 25戸 現況 / 入居可能日 完成済み / 即時
    取引態様 / 賃貸区分 仲介 / 一般
    物件番号 96151937 取引条件の有効期限 2026年02月26日
    設備条件 デザイナーズ 保証人不要 2人入居可 学生相談 法人可 フリーレント 2ヶ月 室内洗濯機置場 フローリング バルコニー 都市ガス 公営水道 公共下水 24時間換気システム エレベーター 電気有 照明器具付き 敷地内ごみ置き場 耐震構造 ガスコンロ コンロ2口以上 システムキッチン 対面式キッチン カウンターキッチン バス・トイレ別 追い焚き風呂 浴室乾燥機 温水洗浄便座 シャワー 洗面所独立 エアコン シューズボックス CS BS インターネット対応 インターネット無料 オートロック TVモニタ付インターホン 宅配ボックス 防犯カメラ 24時間ゴミ出し可 初期費用カード決済可 
    備考 内見代行・写真撮影/動画撮影/WEB契約等、ご来店なしでご契約可能です。お気軽にご相談下さい。2年未満解約時短期解約違約金総賃料2ヶ月分あり。退去時:エアコン洗浄費用(13,200円円/台)借主負担あり。
    条件(その他) 安心入居サポート:1万6,500円  カードキー登録費用:1万1,000円  室内清掃費用:6万500円
    取扱店舗

    リブマックス渋谷店

    東京都渋谷区渋谷1丁目24-14 トライアングルビル 9F

    TEL:03-3400-3300

    国土交通大臣 (5) 第7032号

    (公社)全日本不動産協会東京都本部会員
    (公社)首都圏不動産公正取引協議会加盟

    QRコード

    QRコード

    このQRコードを読み取ることで、スマホでも物件情報を確認できます。

    MAP

    ※地図上に表示される物件の位置は付近住所に所在することを表すものであり、実際の物件所在地とは異なる場合がございます。

    CONTACT US

    必要項目の入力
    入力内容の確認
    お問合わせ完了

    0/0
    必須項目完了

    確認画面へ
    お進み下さい

    0/0
    必須項目完了

    確認画面へ
    お進み下さい

    お問い合わせ店舗 必須
    お名前 必須
    フリガナ 任意
    電話番号 任意
    メールアドレス 必須

    ※お問い合わせに関するメールは、「@livemax.net」「@fudosan-crm.jp」のドメインから送信させていただいております。

    ご要望
    (複数選択可)
    必須
    ご要望・ご相談の
    内容
    任意

    【GRANPASEO下北沢へのお問い合せ】

    利用規約及びプライバシーポリシーを必ずお読みください。
     内容に同意いただいた場合は、確認画面へお進みください。

    HANDLING STORES

    会社画像

    リブマックス渋谷店

    03-3400-3300

    営業時間:AM9:00~PM7:00 定休日:水曜日・年末年始・お盆・GW

    〒150-0002
    東京都渋谷区渋谷1丁目24-14 トライアングルビル 9F

    簡単60来店予約 店舗詳細へ

    PEOPLE ALSO VIEWED THIS PROPERTY

    アビティ下北沢

    賃料 21万円
    種別 マンション
    間取 1LDK
    住所 東京都世田谷区北沢2丁目
    交通 下北沢駅 徒歩3分
    物件の詳細を見る

    レジディア世田谷若林

    賃料 21.1万円
    種別 マンション
    間取 2LDK
    住所 東京都世田谷区若林3丁目
    交通 若林駅 徒歩4分
    物件の詳細を見る

    ラグゼナ用賀

    賃料 20.9万円
    種別 マンション
    間取 1LDK
    住所 東京都世田谷区用賀4丁目
    交通 用賀駅 徒歩1分
    物件の詳細を見る

    スペーシア三軒茶屋弐番館

    賃料 20.8万円
    種別 マンション
    間取 1LDK
    住所 東京都世田谷区太子堂2丁目
    交通 三軒茶屋駅 徒歩1分
    物件の詳細を見る

    トップへ戻る